LEIGH RD – WIGAN
HINDLEY GREEN – WIGAN
DOUBLE-STOREY EXTENSION WIGAN
We’ve recently completed Building Control drawings for a large double-storey extension on a charming 1950s terraced home on Leigh Road, Hindley Green, Wigan. This home, situated at the end of a block and facing a main road, had the perfect potential for transformation — and we were thrilled to bring the vision to life.
At Melrose Designs, we specialise in helping families get more from their homes. This project involved thoughtful planning, structural design, and a layout that meets the modern-day demands of a growing family. Here’s how we made it happen.
Ground Floor
The Property
The original home had typical 1950s terraced features:
-
High ceilings
-
Decorative brickwork
-
Compact rear garden space
But unlike many terraced homes, this property had the added bonus of being on a corner plot — giving us more room to extend both to the side and the rear. This made it the perfect candidate for a double-storey extension that would dramatically increase living space and future resale value.
The Client’s Brief
Our clients came to us with three clear goals:
-
Bigger Bedrooms – As their children grew older, the family needed more room and privacy upstairs.
-
Flexible Work/Study Space – A dedicated room for home working and schoolwork was essential in today’s hybrid lifestyle.
-
Larger Kitchen with Storage – The existing kitchen was small, lacking space for food prep, storage, and entertaining.
From the start, we focused on a design that worked practically, respected the existing structure, and stayed within a realistic budget.
Ground Floor Layout – More Than Just a Kitchen Extension
The new kitchen layout is now spacious and open-plan — perfect for family life. We introduced a seating area and dining space, allowing the family to enjoy meals together or host friends comfortably.
Key Features:
-
Two Structural Steel Beams were used to open up the gable wall, creating seamless access to the new dining area.
-
A dedicated utility room was added to keep noisy appliances out of the main living area.
-
We included a downstairs W.C., a practical addition for any growing family.
-
Access to the rear garden was preserved through a new external door, making summer BBQs and playtime in the garden more convenient.
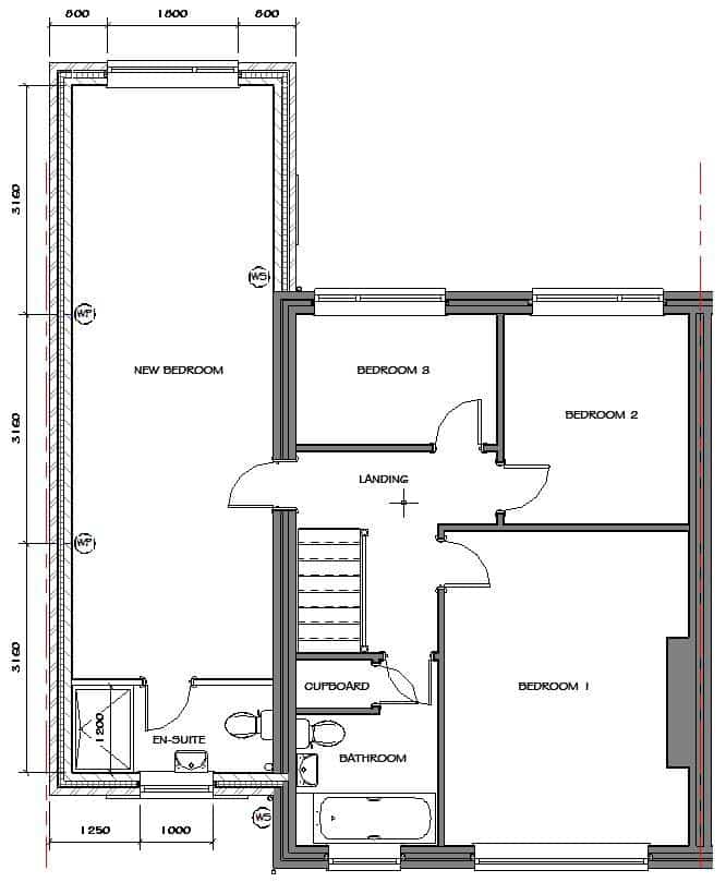
First Floor – Functional and Future-Proof
Upstairs, the changes were just as impactful. The new layout now includes:
-
An additional bedroom that can also serve as a home office or study.
-
A new master bedroom that’s not only spacious, but also perfectly laid out to accommodate built-in wardrobes and a dressing table.
-
A private en-suite bathroom, helping reduce the morning rush for the main family bathroom.
This smart use of space allows the home to grow with the family — making it more liveable in the short term, and more desirable in the long run.
Our Thoughts on Planning a Two-Storey Extension
A double-storey extension is a big investment — and it should be carefully planned from day one. We always encourage our clients to think about cost control early.
Here’s our advice:
-
Make a list of essentials vs. wishlist items. What do you need right now, and what would be nice to have?
-
Be realistic about finishes. High-end kitchens and lighting are great — but only if they fit your overall budget.
-
Factor in every part of the build: structural work, planning fees, insulation, flooring, electrics, plumbing, finishes, and furniture.
-
Get detailed extension drawings that help builders quote accurately and avoid unexpected costs later.
This thoughtful approach keeps your project on track — and keeps your stress levels low.
Thinking About a Double-Storey Extension in Wigan?
If this sounds like the kind of project you’re dreaming of, we’d love to help. Whether you’re ready to build or still considering your options, we’re here to provide:
-
✅ Free initial consultations
-
✅ Planning application support
-
✅ Full building regulation drawings
-
✅ Expert advice tailored to your home and budget
We’ve helped homeowners across Wigan, Hindley, Leigh, and the wider North West create beautiful, practical family homes through smart extension design.
Get in Touch with Melrose Designs
🌐 Visit our website: www.melrosedesigns.co.uk
📞 Call now to arrange a free consultation
Let’s talk about how we can help bring your double-storey extension ideas to life!
First Floor
Thinking of starting your own projects? Feel free to take a look at some of our blogs:
Loft Conversions – A beginners guide
Why it’s important when choosing the right Builder.
Value of Detailed Architecture Drawings.
If you have a similar project to our “Double Storey Extension” project, feel free to get in touch for a brief chat, Melrose Designs are here to help.

