RADCLIFFE AVENUE, WARRINGTON.
RADCLIFFE AVENUE, CULCHETH, WARRINGTON.
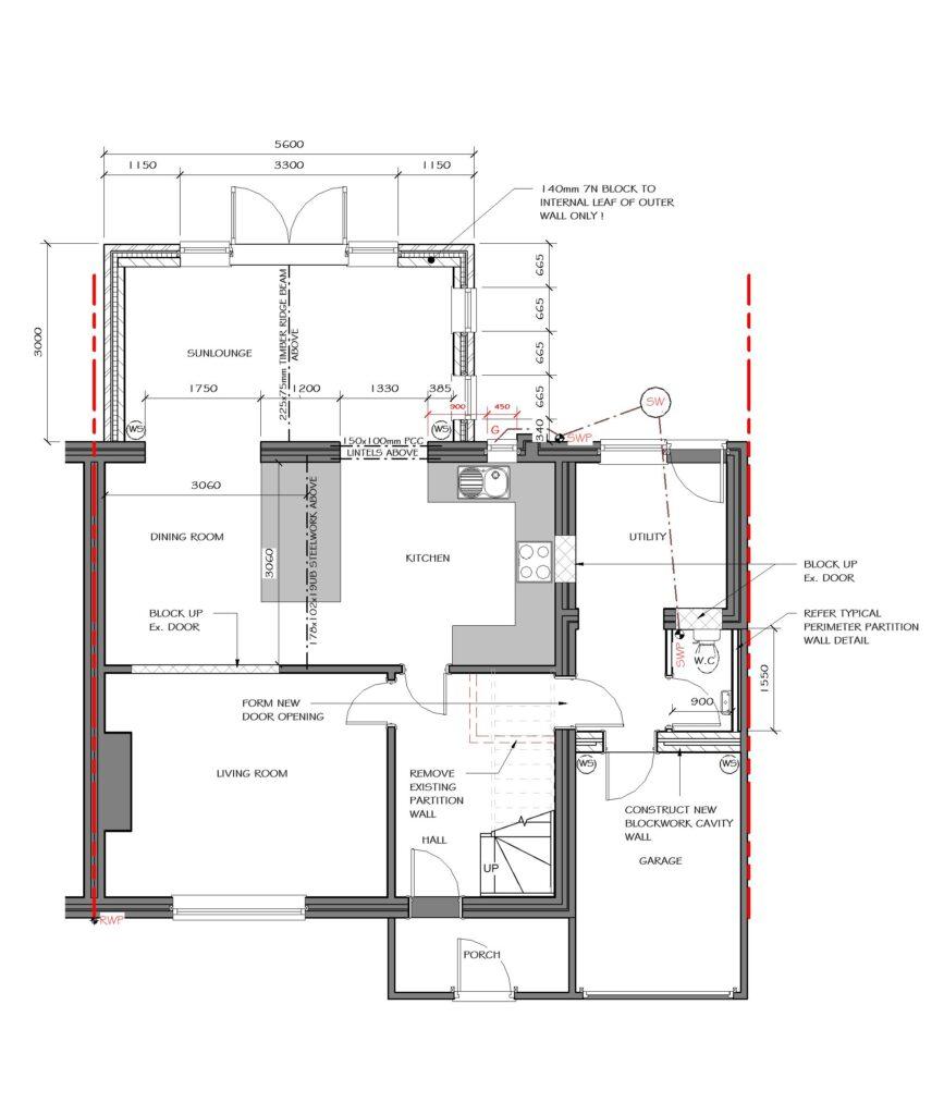
GROUND FLOOR REAR EXTENSION CULCHETH , Warrington
Transform Your Home with a Rear Extension
Are you considering a ground floor rear extension in Culcheth, Warrington? At Melrose Designs, we specialise in architectural and structural extension planning, helping homeowners create spacious and functional living areas that enhance both comfort and property value.
Recently Completed Project – Radcliffe Avenue, Culcheth
Our latest rear extension project in Culcheth provided our clients with a modern, open-plan space ideal for entertaining, dining, and everyday family life. The design incorporated a utility room and a ground floor bathroom, ensuring both practicality and efficiency for a growing household.
Maximising Natural Light and Outdoor Access
To seamlessly blend indoor and outdoor living, we installed full-width bi-folding doors, allowing ample natural light to flood the interior. Above the doors, apex glazing extended up to the vaulted roofline, further enhancing daylight entry. A similar roof glazing feature was successfully implemented in a previous project for a neighbouring property in 2017.
Improving Rear Elevation and Symmetry
The homeowners were keen to enhance the rear elevation of their property while increasing natural light to the bedrooms. To achieve this, we designed larger, realigned windows, improving both the aesthetics and daylight penetration. The result? A beautifully symmetrical rear facade and a brighter home environment.
Planning and Construction Process
Before the extension could be built, an existing conservatory needed to be demolished. We handled all the necessary planning applications, and our designs were approved by Warrington Council within the standard 8-week timeframe.
As part of our end-to-end service, we provided detailed tender drawings and building regulations plans, ensuring smooth project execution. We also recommended trusted local builders, based on our successful past collaborations.
Thinking About a Rear Extension in Warrington?
A rear extension can add valuable living space, improve functionality, and boost property value. Whether you’re planning a new extension or replacing an outdated conservatory, we can guide you through the design, planning, and building regulations process with ease.
Explore More Extension Planning Advice:
Get Expert Advice for Your Home Extension
If you’re planning a home extension in Culcheth, Warrington, or surrounding areas, contact Melrose Designs today. We offer expert guidance on the first steps of designing and planning your project. Whether you need advice on planning permission, building regulations, or design options, we’re here to help.
📞 Call us today or Get in Touch Here to start your project!
Thinking of starting your own projects? Feel free to take a look at some of our blogs:
Replacing Your Conservatory Extension Plans Drawn
Why it’s important when choosing the right Builder
2022 changes to the building regulations for extensions (Part L)
If you have a similar project or need any advice on the first steps of designing and planning an extension, feel free to get in touch for a brief chat, we are here to help.



