Permitted Development Rights for Garage Conversions and Extensions
Permitted Development Garage Conversion
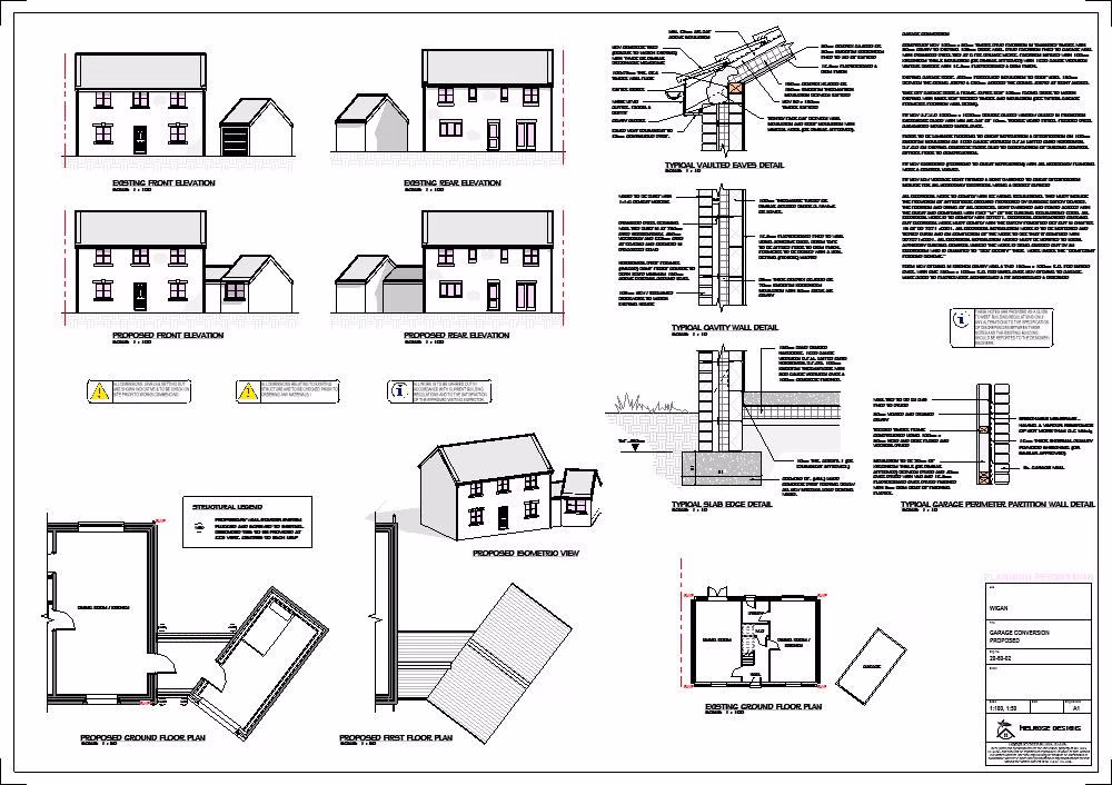
At Melrose Designs, we specialise in home extension design across Wigan and the surrounding areas. One of the most common requests we receive is to convert garages into living space or create garage extensions. Whether your garage is attached or detached, understanding your permitted development rights is essential to get started smoothly.
In this blog, we break down everything you need to know about permitted development garage conversion and garage extension permitted development so you can plan your project with confidence and ease.
What Are Permitted Development Rights?
Permitted development rights allow homeowners to carry out certain types of home improvements without the need for full planning permission. This includes some garage conversions and extensions, provided the work meets specific criteria.
Can I Convert My Garage Without Planning Permission?
In many cases, you can convert your garage to living space under permitted development. This applies especially to attached garages that are part of the original structure of the house.
Key Conditions:
- Conversion work must be internal only (e.g. insulation, flooring, new walls).
- The garage must remain part of the main dwelling, not a separate unit.
- No major external changes such as increasing roof height or changing the footprint.
Replacing the garage door with a window and upgrading the interior often doesn’t require garage conversion planning permission. However, if your home is listed or located in a conservation area, you may still need approval.
What If I Have a Detached Garage?
Detached garage conversions are still possible under permitted development, but there are additional rules to follow.
Conditions for Detached Garage Conversions:
- The converted space must remain ancillary to the main house.
- No use as a separate dwelling.
- No changes in height or footprint that breach PD limits.
If you’re extending a detached garage, check the latest detached garage extension rules to avoid planning issues.
Garage Extensions and Permitted Development
Extending a garage can also fall under permitted development, but strict limits apply depending on whether your garage is attached or detached.
Attached Garage Extension Rules:
- Must not extend beyond the front wall of the original house.
- Rear or side extensions allowed up to 3m (4m for detached houses).
- Maximum height of 4m, or 3m if within 2m of a boundary.
Detached Garage Extension Rules:
- Must be single-storey only.
- Cannot cover more than 50% of the land around the original house.
- Maximum height of 4m (pitched roof) or 2.5m near boundaries.
These fall under Class E of the permitted development rules. We always recommend applying for a Lawful Development Certificate (LDC) for extra reassurance.
Do I Still Need Building Regulations Approval?
Yes – even if you don’t need planning permission, you must still meet building regulations for:
- Structural changes
- Thermal insulation and ventilation
- Electrical or plumbing installations
- Fire safety (especially for habitable spaces)
At Melrose Designs, we handle everything from concept to submission, ensuring your garage project complies with both building and planning requirements.
Why Choose Melrose Designs?
We have years of experience designing garage conversions and garage extensions across Wigan. Our clients trust us for:
- Expert advice tailored to permitted development rights
- Complete drawing packages for planning or building regulations
- Close collaboration with structural engineers and local councils
With our local knowledge and hands-on service, we take the stress out of your home improvement journey.
Ready to Start Your Garage Project?
If you’re thinking about a garage conversion or garage extension, get in touch with Melrose Designs today. We’ll guide you through the process and help you make the most of your permitted development rights.
Call us or
email us to book your free consultation.

