Melrose Designs

Value Of Detailed Architecture Drawings

The Value of Detailed Architectural Drawings for Your Project

At Melrose Designs Architectural Services, we prioritise accuracy, clarity, and seamless communication. When you choose us for your extension plans or renovation designs in areas like Chorley and Wigan, our skilled architectural technicians deliver detailed architectural drawings that ensure your project runs smoothly from start to finish. But why are these drawings so essential? Let’s explore their value and how they benefit homeowners, builders, and planning authorities alike.
 

Value Of Detailed Architecture Drawings

 

Starting with Precision: Surveys and Measurement Technology

Every great design begins with a solid foundation. Using advanced survey and measurement technology, we create initial sketches that help you visualise how your finished project will look and function. This early step gives you a clear picture of how your home will be enhanced, allowing you to tweak the design to suit your lifestyle, needs, and personal style. Once you’ve approved these sketches after thorough discussions, we move on to the next phase: creating detailed architectural drawings.
 

 

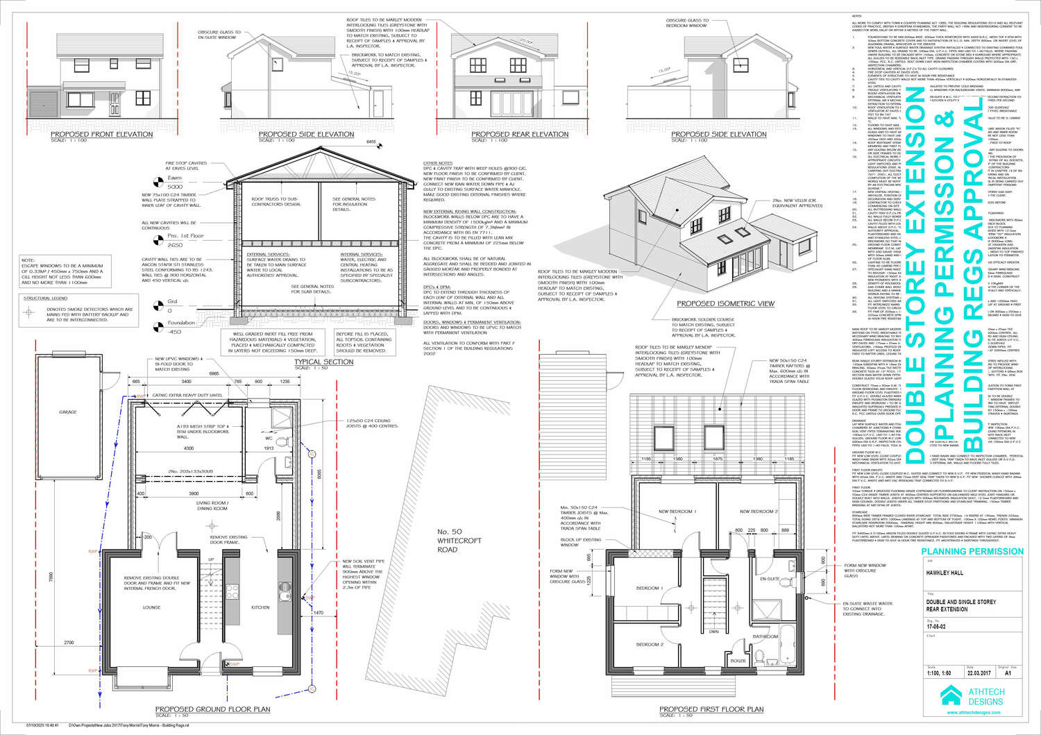
What Are Detailed Architectural Drawings?

This is where your vision truly takes shape. Our detailed architectural drawings provide an in-depth representation of your property post-project. These typically include:
  • Existing and proposed floor plans
  • Elevations
  • Roof plans
  • Site plans
Each drawing accurately showcases key features, ensuring nothing is left to chance. Whether you’re planning an extension in Wigan or a renovation in Chorley, these drawings are the blueprint for success.
 

 

Why You Need Detailed Plans for Planning Permission

Submitting a planning application to your local council? Detailed architectural drawings are non-negotiable. They consolidate all necessary information into professional, easy-to-understand diagrams, speeding up the approval process. At Melrose Designs, we know exactly what local authorities require for a hassle-free application. Missing even one detail can cause delays, so we ensure every planning permission drawing is comprehensive and compliant—saving you time and stress.
 

 

Who Handles Your Planning Application?

We get it—you’re busy. That’s why our team manages the entire planning application process for you. Once you’re happy with your detailed architectural drawings, we submit them to your local authority, handle all correspondence, and secure approval as quickly as possible. It’s one less thing for you to worry about.
 

 

Detailed Architectural Drawings for Building Regulations

After planning approval, we shift focus to building regulation drawings. These go beyond aesthetics, detailing how your project will be constructed to meet safety and compliance standards. Expect specifics like:
  • Timber layout plans
  • Detailed sections
  • Material specifications
Once complete, we submit these to approved building control inspectors, streamlining yet another step of your project. Whether you’re in Wigan or Chorley, our expertise ensures building regulation approval with minimal fuss.
 

 

Supporting Builders and Contractors

Our detailed architectural drawings aren’t just for regulators—they’re a vital tool for contractors too. With precise details, builders can accurately estimate costs, reducing the risk of surprises and helping you stay within budget. Plus, the clarity of our drawings minimises on-site delays, keeping your project on track. From extension plans to full renovations, we empower contractors to deliver high-quality results efficiently.
 

 

Keeping You in Control: On-Site Monitoring

What happens once construction begins? That’s up to you. Our detailed drawings allow you to monitor progress yourself, but we also offer an optional on-site monitoring service. This popular add-on includes:
  • Regular site visits by our experts
  • Quality and performance reviews
  • Detailed progress reports with photos
We collaborate with you and your contractor to ensure every stage meets the highest standards, complies with regulations, and aligns with your vision. This hands-on approach eliminates uncertainty and gives you peace of mind throughout the build.
 

 

Ready to Bring Your Vision to Life?

Detailed architectural drawings are the backbone of any successful project, from planning applications to building regulation approval and construction. At Melrose Designs, we’re proud to offer tailored services across Chorley, Wigan, and beyond. Want to discuss your ideas or learn more about permitted development? Contact us today via Melrose Designs Contact (#).
Let’s turn your dream home into reality with expertly crafted architectural designer drawings—drawn up, submitted, and approved with ease.

 

FOLLOW ON THE WEBSITE

What happens next is entirely up to you. We give our clients the opportunity to use these detailed drawings to check the progress of the work for themselves. In addition, we are also delighted to offer our very popular on-site monitoring, which involves us staying with your project until its completion. 

This tailor-made service includes regular on-site visits by our experts to ensure that everything goes well. We review the performance and quality of each step and discuss the field results with you and the contractor. This is followed by a site report outlining our findings, work completed to date, proposed work in the coming weeks, and a picture of progress. This approach removes all uncertainty and gives you confidence that all aspects of the build phase are of the highest quality and consistency while meeting a wide range of compliance regulations.

Want to talk through your ideas with us and see how we can help? Get in contact today about What is Permitted Development? Melrose Designs Contact.

Value Of Detailed Architecture Drawings 

Extension Plans Chorley, Wigan and Architectural Designer Drawings Drawn, Wigan for Planning Permission and Building Regulations. Planning Applications Submitted. Building Regulation Drawings. Plans Drawn Up. Building Regulation Approval in Wigan.