Loft and Garage Conversions
Unlock Hidden Space with Loft & Garage Conversions
Experience That Builds Trust
Fixed Competative prices
Fast Turn Around
Loft and Garage Conversions
Maximise your home’s potential with a professionally designed loft or garage conversion. At Melrose Designs, we turn underused spaces into beautiful, functional rooms—whether it’s a new bedroom, office, or studio.
We take care of the full planning process, ensuring your conversion meets building regulations and planning policies. Our designs are tailored to your lifestyle and add real value to your property.
Let’s Design Your Dream Home — Together !
Loft Conversion
Create Space Without Moving – Transform Your Loft
Running out of room but not ready to relocate? A loft conversion is a smart, cost-effective way to unlock the hidden potential in your home. Instead of extending outward, you can build upward—adding valuable living space without sacrificing your garden or outdoor area.
Whether you’re planning a new bedroom, home office, or a peaceful retreat, Melrose Designs will guide you through the entire process—from initial design to planning permission. We’ll ensure your loft conversion is beautifully designed, fully compliant, and tailored to your lifestyle.
Let’s turn your unused attic into something extraordinary.
Want to learn more? Check out our in-depth blog on Loft Conversions.
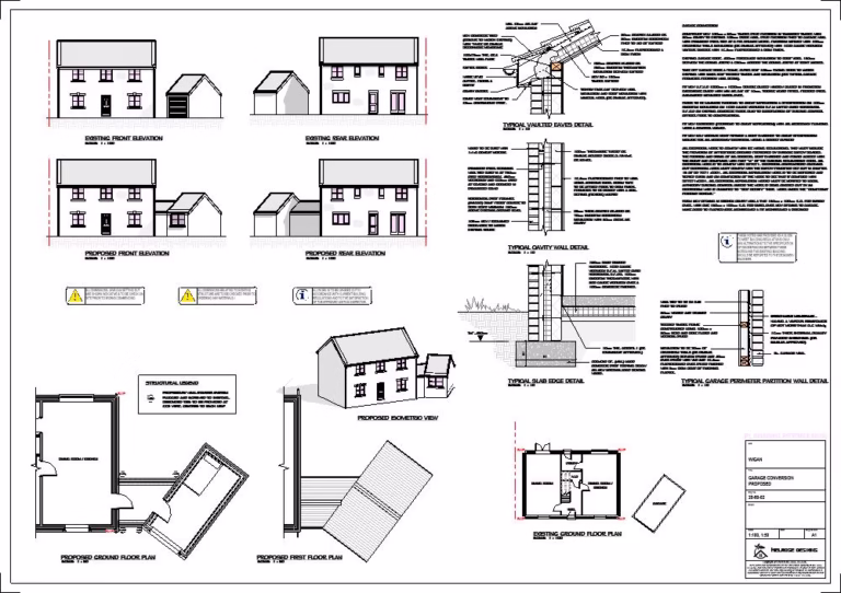
Garage Conversion
Turn Wasted Space into Something Wonderful
If your garage is underused or simply a storage space for clutter, why not transform it into a functional, stylish part of your home? A garage conversion is a cost-effective way to add valuable living space—perfect for a home office, guest room, gym, or playroom. At Melrose Designs, we’ll help you reimagine your garage with a design that suits your needs and complies with all planning and building regulations. It’s a smart upgrade that adds both comfort and value to your property.
Want to learn more? Check out our in-depth blog on Garage Conversions.
Explore Our Loft and Garage conversion Drawings




Why Choose us ?

Experience That Builds Trust
With over 15 years of proven success, our experience drives every project forward with confidence and precision.

Cost-Effective
We’re confident in our pricing — compare us with others and see the value for yourself.

Quick Turnaround
We guarantee a 14 day turn around for all your designs Progress to the construction stage with minimum delay with our streamlined service.
Testimonials
What Our Clients Say
Posted on David AspinwallTrustindex verifies that the original source of the review is Google. Kieran was really easy to work with and made the process of getting our extension ideas onto paper simple. Very professional and responded quickly to queries.Posted on Cate MurdockTrustindex verifies that the original source of the review is Google. Keiran at Melrose Designs was fantastic to work with. He delivered our designs really quickly and was always helpful and responsive throughout the process. He also guided us through the building regulations application, which made everything much easier. We’d definitely recommend to anyone looking for a reliable and efficient architect.Posted on Adam HigsonTrustindex verifies that the original source of the review is Google. Melrose Designs were fantastic from start to finish. They handled my extension design professionally and guided it smoothly through both planning and building stages. Clear, helpful, and reliable, I’d highly recommend them to anyone looking for quality design workPosted on Jamie CooperTrustindex verifies that the original source of the review is Google. Great service provided - we had a design including an extension which later changed to a garage conversion and Melrose Designs were very accommodating and changed the plans for us with a quick turn around. Highly recommended.Posted on Michael OldfieldTrustindex verifies that the original source of the review is Google. Brilliant service from Melrose Designs. They made the whole process of getting my extension approved stress-free. The drawings were spot on, communication was great, and everything went through planning without a hitch. Couldn’t be happier with the result.Posted on Aaron BlandTrustindex verifies that the original source of the review is Google. Kieran was very professional in every possible way ,he’s understanding of our extension needs ,was exceptional We now have a extra bedroom and utility room added to our family home Myself and my partner Suzanne can’t thank Kieran enough Thanks BuddyPosted on Builders SquadTrustindex verifies that the original source of the review is Google. Good experience with Kieran and his company. Polite, always responsive. Always was very helpful, will recommend to others and will use his services again.Posted on Martin BisphamTrustindex verifies that the original source of the review is Google. Kieran sorted our plans from start to finish and went the extra mile. Top bloke and really helpful.Posted on Paul GalvinTrustindex verifies that the original source of the review is Google. Known Kieran for a long time. Great fella and really knowledgeable. plan looks superb. Thanks.Posted on Siobhan GTrustindex verifies that the original source of the review is Google. I can’t recommend Kieran enough. He was professional and friendly. He was always quick to respond to my many questions and requests! I will definitely use him again if we need any future plans drawing up.
How It Works
Step 1
Free Consultation Call
Book a free consultation and let’s bring your ideas to life. We’ll offer expert design advice and guide you through every step of the process — from start to finish.
Step 2
Site Survey & Meeting
We’ll visit your property to take precise measurements and gather all the key site details needed to keep your project moving forward smoothly. We will then discuss how we will turn your vision to life while offering creative solutions to make the design truly exceptional.
Step 3
Planning Approval
We will take care of the entire planning application process — from preparing and submitting all required documents to liaising with your local council. Acting as your agent, we work to secure approval quickly and efficiently.
Step 4
Building Regulations
We then produce detailed building regulation drawings and coordinate the necessary structural calculations, ensuring your builders have everything they need to begin construction without delay.
Maximise the Value of Your Home Through Smart Design
Start Your Design Journey with a Free Consultation
Let’s bring your ideas to life. Share your vision, receive expert advice, and begin shaping your dream project—with no cost and no obligation.
FAQ's
We kick things off with a friendly consultation. This is your chance to share your ideas, goals, and preferences. Drawing from our extensive experience, we’ll suggest creative directions tailored to your vision. Next, we develop an initial concept and present draft plans for your feedback. You’ll have the opportunity to refine and adjust the design until it’s exactly how you imagined.
Project timelines vary depending on complexity, but we aim to visit your property within a few days of your inquiry. You can expect to receive your first draft plans within approximately two weeks.
Construction can sometimes begin within a few weeks, though more detailed projects may take up to four months to reach the build stage.
Definitely. With over 15 years of working closely with councils across the North West, we’ve developed strong relationships and a deep understanding of local planning policies — helping your application move smoothly through the approval process.
Yes, we take care of the entire planning application process for you. From preparing the paperwork to liaising with the council, we act as your agent to ensure everything is submitted correctly and efficiently.
We do! Using advanced design software, we create realistic 3D renderings that give you a clear picture of your future space — helping you make confident decisions before construction begins.
Yes, we have a network of trusted contractors we’ve worked with across various areas. We’re happy to connect you with reputable builders and assist in gathering quotes to suit your project.